Freundliche Praxisräume im Souterrain – inkl. Treppenliftoption!

Video zu dieser Immobilie
3D-Rundgang zu dieser Immobilie
Datenblatt
ImmoNr 1250
Nutzungsart Gewerbe
Vermarktungsart Miete
Objektart Büro/Praxen
Objekttyp Praxisfläche
PLZ 44869
Ort Bochum
Straße Böcklinweg
Hausnummer 26
Land Deutschland
Gesamtfläche 93 m²
Bürofläche 93 m²
Gewerbefläche 93 m²
ImmoNr 1250 Nutzungsart Gewerbe
Vermarktungsart Miete Objektart Büro/Praxen
Objekttyp Praxisfläche PLZ 44869
Ort Bochum Straße Böcklinweg
Hausnummer 26 Land Deutschland
Gesamtfläche 93 m² Bürofläche 93 m²
Gewerbefläche 93 m²

Hinweis zur Provision:

Details zur Immobilie
*** Helle Praxis- oder Büroräume im Souterrain mit Charme und Potenzial ***

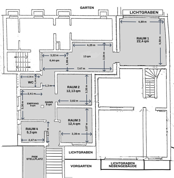
Diese attraktive Gewerbefläche mit einer Gesamtgröße von ca. 93,3 m² befindet sich im Souterrain eines gepflegten Zweifamilienhauses und überzeugt durch ihren praktischen Grundriss sowie die freundliche, helle Atmosphäre.
Das Gebäude selbst präsentiert sich in einem sehr gepflegten Zustand und weist keinen Instandhaltungsstau auf – ideale Voraussetzungen für eine langfristige und sorgenfreie Nutzung.

Die Fläche teilt sich wie folgt auf:
- einladender Eingangsbereich
- großzügiger Empfang
- drei vielseitig nutzbare Behandlungs- oder Büroräume
- zwei separate Wartebereiche
- WC-Anlage

Die Räume wurden über 35 Jahre erfolgreich als allgemeinärztliche Praxis betrieben und eignen sich ideal für eine erneute medizinische Nutzung – z. B. als Zahnarztpraxis (Alleinstellungsmerkmal im Umkreis von 3 km), Physio- oder Ergotherapiepraxis, Kosmetikstudio, Fußpflege oder für eine klassische Büronutzung.

Vor der Neuvermietung werden durch den Eigentümer folgende Renovierungsmaßnahmen durchgeführt:
- Einbau einer neuen Eingangstür
- Erneuerung der gesamten Elektroinstallation
- Austausch älterer Heizkörper

Im Bedarfsfall prüft der Vermieter gerne die Installation eines Treppenlifts und unterstützt diese Möglichkeit aktiv, um eine barriereärmere Nutzung zu ermöglichen.

Dies zeigt, dass der Vermieter großen Wert auf ein vertrauensvolles, langfristiges Mietverhältnis setzt.
Offen für eine faire Zusammenarbeit erhalten Sie zum Start bestmögliche Unterstützung!

Trotz der Lage im Souterrain profitieren die Räume von angenehmem Tageslicht und einer freundlichen Arbeitsatmosphäre.

Weitere Details:
- Bezug ab 01.01.2026 möglich
- Optionaler KFZ-Stellplatz (50 €/Monat)
- Energieausweis in Vorbereitung, liegt zur Besichtigung vor

Lage:
Die Immobilie liegt im beliebten Bochumer Stadtteil Höntrop, einem ruhigen Wohngebiet im Südwesten der Stadt.
Der Böcklinweg ist eine angenehme Anliegerstraße mit wenig Verkehr – hier profitieren Sie von einer ruhigen Arbeitsumgebung bei gleichzeitig guter Erreichbarkeit. Einkaufsmöglichkeiten, öffentliche Verkehrsmittel und Parkmöglichkeiten befinden sich in der näheren Umgebung.

Bei Interesse senden Sie uns bitte eine Anfrage! Telefonische Anfragen können nicht bearbeitet werden.

Hinweis!
Bitte haben Sie Verständnis dafür, dass wir Ihnen nur einen Besichtigungstermin anbieten, wenn Sie sich im Vorfeld die Lage/Adresse des Hauses angeschaut haben!
Diese Highlights überzeugen:

- Moderne Ausstattung nach Renovierung
- Neue Eingangstür, Elektrik und größtenteils neue Heizkörper
- Dreifach verglaste Fenster
- Moderner Bodenbelag
- Praktischer Grundriss mit Empfang, Wartebereichen und mehreren Räumen
- Helle Räume trotz Souterrainlage
- Gepflegtes Gebäude ohne Instandhaltungsstau
- Ruhige Lage im Wohngebiet Bochum-Höntrop, Anliegerstraße
- Bezugsfrei ab 01.01.2026
- Optionaler KFZ-Stellplatz (50 €/Monat)

Die Nutzung der Räume kann individuell angepasst werden: Flexible Maßnahmen, Umbauten oder Anpassungen nach Absprache sind möglich, ebenso wie die erwähnte Installation eines Treppenlifts bei Bedarf.

Insgesamt zeichnet sich das Angebot durch die vielseitigen Nutzungsmöglichkeiten, die mögliche Individualisierung und den repräsentativen ersten Eindruck aus.
Die Gewerbefläche befindet sich im Stadtteil Höntrop, einem ruhigen Wohngebiet im Südwesten Bochums. Der Böcklinweg ist eine Anliegerstraße.

Umgebung und Infrastruktur

Höntrop zeichnet sich durch eine gute Wohnqualität aus, mit einer Mischung aus Einfamilienhäusern und kleineren Mehrfamilienhäusern. Die Anbindung an den öffentlichen Nahverkehr ist gut, und Einkaufsmöglichkeiten sowie Schulen und Kindergärten sind in der Nähe vorhanden.

Buslinien: Die Buslinie 389 hält an der nahegelegenen Haltestelle Rembrandtweg, die fußläufig erreichbar ist. Diese Linie verbindet Höntrop mit anderen Stadtteilen und dem Bochumer Hauptbahnhof.

S-Bahn: Der Bahnhof Bochum-Höntrop ist ebenfalls in der Nähe und bietet Anschluss an die S-Bahn-Linie S1, die zwischen Dortmund und Solingen verkehrt.

Zusätzlich gibt es weitere Buslinien in der Umgebung, wie die Linien 344, 346 und 390, die zusätzliche Verbindungen innerhalb Bochums und zu benachbarten Städten bieten.

Insgesamt bietet der Böcklinweg 26 in Bochum-Höntrop eine ruhige Wohnlage mit guter Infrastruktur und medizinischer Versorgung, ideal für Familien und Berufstätige.
Auszeichnungen und Mitgliedschaft:

--- Reuter Immobilien gehört laut Focus zu den TOP-MAKLERUNTERNEHMEN in Deutschland
--- Zertifizierung nach DIN EN 15733
--- Mitglied im Competence Club der Immobilien - Profis
--- IVD Immobilienfortbildungszertifikat 2018
--- BNI (Business Network International)
--- Mitglied in der Immobilienbörse Ruhr-Lippe e.V.

Wir möchten höflich darauf hinweisen, dass die hier gemachten Angaben ausschließlich auf den uns vom Vermieter übermittelten Unterlagen und Daten basieren. Für die Richtigkeit und Vollständigkeit können wir keine Haftung übernehmen.

Sollten sie Fragen:

- zur Immobilie,

- zu unserer Rundumbetreuung für Eigentümer,

- zu unserer Leistungsgarantie haben?

oder wünschen Sie eine Bewertung Ihrer Immobilie?

Dann rufen Sie uns an unter: 0234/ 917 906 86 oder schreiben Sie uns: info@reuter-immobilien.info

Wir freuen uns auf Sie !

Ihr Reuter Immobilien Team
Netto Kaltmiete 750 €
Kaltmiete 750 €
Nebenkosten 120 €
Warmmiete 870 €
Währung
Kaution 2.250 €
Energieausweis Skala Energieausweis Zeiger
Baujahr 1965
wesentlicher Energieträger Öl
Details zur Immobilie
Energieausweisdaten
Energieausweis Skala Energieausweis Zeiger
Baujahr 1965
wesentlicher Energieträger Öl
Netto Kaltmiete 750 €
Kaltmiete 750 €
Nebenkosten 120 €
Warmmiete 870 €
Währung
Kaution 2.250 €
Beschreibung der Immobilie *** Helle Praxis- oder Büroräume im Souterrain mit Charme und Potenzial ***

Diese attraktive Gewerbefläche mit einer Gesamtgröße von ca. 93,3 m² befindet sich im Souterrain eines gepflegten Zweifamilienhauses und überzeugt durch ihren praktischen Grundriss sowie die freundliche, helle Atmosphäre.
Das Gebäude selbst präsentiert sich in einem sehr gepflegten Zustand und weist keinen Instandhaltungsstau auf – ideale Voraussetzungen für eine langfristige und sorgenfreie Nutzung.

Die Fläche teilt sich wie folgt auf:
- einladender Eingangsbereich
- großzügiger Empfang
- drei vielseitig nutzbare Behandlungs- oder Büroräume
- zwei separate Wartebereiche
- WC-Anlage

Die Räume wurden über 35 Jahre erfolgreich als allgemeinärztliche Praxis betrieben und eignen sich ideal für eine erneute medizinische Nutzung – z. B. als Zahnarztpraxis (Alleinstellungsmerkmal im Umkreis von 3 km), Physio- oder Ergotherapiepraxis, Kosmetikstudio, Fußpflege oder für eine klassische Büronutzung.

Vor der Neuvermietung werden durch den Eigentümer folgende Renovierungsmaßnahmen durchgeführt:
- Einbau einer neuen Eingangstür
- Erneuerung der gesamten Elektroinstallation
- Austausch älterer Heizkörper

Im Bedarfsfall prüft der Vermieter gerne die Installation eines Treppenlifts und unterstützt diese Möglichkeit aktiv, um eine barriereärmere Nutzung zu ermöglichen.

Dies zeigt, dass der Vermieter großen Wert auf ein vertrauensvolles, langfristiges Mietverhältnis setzt.
Offen für eine faire Zusammenarbeit erhalten Sie zum Start bestmögliche Unterstützung!

Trotz der Lage im Souterrain profitieren die Räume von angenehmem Tageslicht und einer freundlichen Arbeitsatmosphäre.

Weitere Details:
- Bezug ab 01.01.2026 möglich
- Optionaler KFZ-Stellplatz (50 €/Monat)
- Energieausweis in Vorbereitung, liegt zur Besichtigung vor

Lage:
Die Immobilie liegt im beliebten Bochumer Stadtteil Höntrop, einem ruhigen Wohngebiet im Südwesten der Stadt.
Der Böcklinweg ist eine angenehme Anliegerstraße mit wenig Verkehr – hier profitieren Sie von einer ruhigen Arbeitsumgebung bei gleichzeitig guter Erreichbarkeit. Einkaufsmöglichkeiten, öffentliche Verkehrsmittel und Parkmöglichkeiten befinden sich in der näheren Umgebung.

Bei Interesse senden Sie uns bitte eine Anfrage! Telefonische Anfragen können nicht bearbeitet werden.

Hinweis!
Bitte haben Sie Verständnis dafür, dass wir Ihnen nur einen Besichtigungstermin anbieten, wenn Sie sich im Vorfeld die Lage/Adresse des Hauses angeschaut haben!
Ausstattung der Immobilie Diese Highlights überzeugen:

- Moderne Ausstattung nach Renovierung
- Neue Eingangstür, Elektrik und größtenteils neue Heizkörper
- Dreifach verglaste Fenster
- Moderner Bodenbelag
- Praktischer Grundriss mit Empfang, Wartebereichen und mehreren Räumen
- Helle Räume trotz Souterrainlage
- Gepflegtes Gebäude ohne Instandhaltungsstau
- Ruhige Lage im Wohngebiet Bochum-Höntrop, Anliegerstraße
- Bezugsfrei ab 01.01.2026
- Optionaler KFZ-Stellplatz (50 €/Monat)

Die Nutzung der Räume kann individuell angepasst werden: Flexible Maßnahmen, Umbauten oder Anpassungen nach Absprache sind möglich, ebenso wie die erwähnte Installation eines Treppenlifts bei Bedarf.

Insgesamt zeichnet sich das Angebot durch die vielseitigen Nutzungsmöglichkeiten, die mögliche Individualisierung und den repräsentativen ersten Eindruck aus.
Hier befindet sich die Immobilie Die Gewerbefläche befindet sich im Stadtteil Höntrop, einem ruhigen Wohngebiet im Südwesten Bochums. Der Böcklinweg ist eine Anliegerstraße.

Umgebung und Infrastruktur

Höntrop zeichnet sich durch eine gute Wohnqualität aus, mit einer Mischung aus Einfamilienhäusern und kleineren Mehrfamilienhäusern. Die Anbindung an den öffentlichen Nahverkehr ist gut, und Einkaufsmöglichkeiten sowie Schulen und Kindergärten sind in der Nähe vorhanden.

Buslinien: Die Buslinie 389 hält an der nahegelegenen Haltestelle Rembrandtweg, die fußläufig erreichbar ist. Diese Linie verbindet Höntrop mit anderen Stadtteilen und dem Bochumer Hauptbahnhof.

S-Bahn: Der Bahnhof Bochum-Höntrop ist ebenfalls in der Nähe und bietet Anschluss an die S-Bahn-Linie S1, die zwischen Dortmund und Solingen verkehrt.

Zusätzlich gibt es weitere Buslinien in der Umgebung, wie die Linien 344, 346 und 390, die zusätzliche Verbindungen innerhalb Bochums und zu benachbarten Städten bieten.

Insgesamt bietet der Böcklinweg 26 in Bochum-Höntrop eine ruhige Wohnlage mit guter Infrastruktur und medizinischer Versorgung, ideal für Familien und Berufstätige.
Sonstige Angaben zur Immobilie Auszeichnungen und Mitgliedschaft:

--- Reuter Immobilien gehört laut Focus zu den TOP-MAKLERUNTERNEHMEN in Deutschland
--- Zertifizierung nach DIN EN 15733
--- Mitglied im Competence Club der Immobilien - Profis
--- IVD Immobilienfortbildungszertifikat 2018
--- BNI (Business Network International)
--- Mitglied in der Immobilienbörse Ruhr-Lippe e.V.

Wir möchten höflich darauf hinweisen, dass die hier gemachten Angaben ausschließlich auf den uns vom Vermieter übermittelten Unterlagen und Daten basieren. Für die Richtigkeit und Vollständigkeit können wir keine Haftung übernehmen.

Sollten sie Fragen:

- zur Immobilie,

- zu unserer Rundumbetreuung für Eigentümer,

- zu unserer Leistungsgarantie haben?

oder wünschen Sie eine Bewertung Ihrer Immobilie?

Dann rufen Sie uns an unter: 0234/ 917 906 86 oder schreiben Sie uns: info@reuter-immobilien.info

Wir freuen uns auf Sie !

Ihr Reuter Immobilien Team
Diese Immobilien könnten Sie interessieren
Büro/Praxen in Bochum
Büro/Praxen in Bochum
Büro/Praxen in Bochum
Ansprechpartner

Frau Ramona Rogon
Hattingerstr. 882
44879 Bochum

E-Mail rogon@reuter-immobilien.info

Sofortanfrage
Ich bin mit den Datenschutzbestimmungen einverstanden.

Mit * gekennzeichnete Felder sind Pflichtangaben

Lage der Immobilie
Reuter Immobilien

Rufen Sie uns an. Wir freuen uns auf ein persönliches Gespräch.

02 34 - 91 79 06 86