Sonnenterrasse Mötz TOP 07 Penthouse - Variante

Zu Verkaufen

Zu Vermieten

Sonnenterrasse Mötz TOP 07 Penthouse - Variante

Unweit vom Dorfzentrum entsteht das neue Wohnprojekt am Locherbodenweg 3 / 6423 Mötz.
Es erwartet Sie ein außergewöhnlicher Bau in zentraler und sonniger Lage (Ausrichtung Süden) mit einem atemberaubendem Blick auf die umliegende Bergwelt.

Das Projekt umfasst einen einzelnen Baukörper, welcher im Gelände höhenversetzt angeordnet ist.
Er is...
Mehr erfahren
ImmoNr. Mötz TOP 07 Variante
Ort Mötz
Kaufpreis 478.000 €
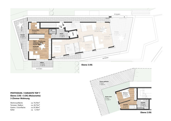
Wohnfläche 75 m²
Anzahl Zimmer 3
Anzahl Schlafzimmer 2
Anzahl Badezimmer 1
Anzahl Terrassen 2
Balkon/Terrasse Fläche 27 m²
Stellplätze 1 Tiefgaragenstellplatz à 25.000 € (Kauf)
Heizsystem Luftwärmepumpe
Niedrigenergiestandard Ja
Niedrigenergiestandard Nein

Informationen

Unweit vom Dorfzentrum entsteht das neue Wohnprojekt am Locherbodenweg 3 / 6423 Mötz.
Es erwartet Sie ein außergewöhnlicher Bau in zentraler und sonniger Lage (Ausrichtung Süden) mit einem atemberaubendem Blick auf die umliegende Bergwelt.

Das Projekt umfasst einen einzelnen Baukörper, welcher im Gelände höhenversetzt angeordnet ist.
Er ist gegliedert in 5 Geschoße UG / EG / OG1 / OG2 / OG3 und bietet Platz für insgesamt 8 hochwertige Einheiten.

Alle Wohnungen sind als moderne 2-/ 3- oder 4-Zimmer Wohnungen gestaltet. Alle Einheiten besitzen eine zugehörige Terrasse bzw. einen eigenen Balkon. Weiters verfügen einige Einheiten über einen privaten Garten.

Im gemeinsamen UG befindet sich die Garage, welche auf Straßenniveau erschlossen wird (Einfahrt ebenerdig). Für jede Einheit ist mind. ein privater Garagenplatz verfügbar.
Diese sind im angebotenem Wohnungspreis nicht enthalten und müssen mit der Wohnung zum Preis von € 25.000,- / Stellplatz inkl. Ust. separat erworben werden.
HEIZUNG und SANITÄREINRICHTUNGEN

Das gesamte Wohnprojekt wird mit einer hocheffizienten und nachhaltigen Luft/ Wärmepumpe beheizt.
Elegante weiße Sanitärkeramik rundet die moderne Gestaltung der Badezimmer ab.
Klare Designlinien stehen für zeitlose Ästhetik und hygienische Pflegeleichtigkeit.
Komfortable und funktionelle Ausstattung verwandelt das Badezimmer zu Ihrer persönlichen Wellnessoase.

BODENBELÄGE INNENRAUM

In den Aufenthaltsräumen kommen ausschließlich edle Echtholzparkettböden zum Einsatz.
Landhausdielen Größe ca. B100 / L1250 / D10 mm in verschiedenen Oberflächen erhältlich.
Großformatiges Feinsteinzeug veredelt Bad und WC sowie Nebenräume und den Eingangsbereich.

BODENBELÄGE AUSSENBEREICH

Terrassen mit angrenzendem Garten werden mit großformatigen Platten in Betonoptik verlegt.

BELEUCHTUNG

Dezente, moderne Beleuchtungskörper für den Außen- und allgemeinen Innenbereich.

FENSTER

Alle Fenster werden in hochwertiger Kunststoff-Alu-Konstruktion mit 3-fach Verglasung ausgeführt.
Innen Kunststoff / Außen Alu.

RAFFSTORE

Für außenliegende Raffstores sind entsprechende Stromanschlüsse vorgesehen.

Specials

Kabel Sat TV
Balkon
Terrasse
Haustiere erlaubt
Denkmalgeschützt
Gewerbliche Nutzung
Courtagefrei
Nahe Autobahn
Mehrere Bäder
Barrierefrei
Energieausweis A
Fensterfront
Gartennutzung
Kamin
Kinderfreundlich
Kantine/Cafeteria
Möbliert
Pool
Rollstuhlgerecht
Sauna
Schaufensterfront
Seniorengerecht
Spielplatz
Starkstrom
Stellplatz
WG-Geeignet
Wintergarten
Aufzug
Tiefgarage
Balkone / Terrassen
Luftwärmepumpe
Fußbodenheizung

Rundgang

 

Kontaktformular

Kontakt

Logo Vienna Immobilien

DS Wohnprojekte
Schießstandweg 2
6441 Umhausen
Mobil +43 6642850559 E-Mail immo@ds-wohnprojekte.at

Kontakt